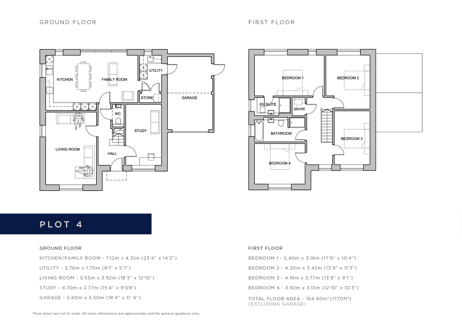
One of just nine exceptional private homes by Cubed Homes, this striking development in the sought-after village of Pembury offers a rare opportunity to secure a beautifully designed property priced between £695,000 and £985,000. With strong demand and only two homes remaining, early viewing is highly recommended.
Each home has been thoughtfully designed to balance privacy, space, and modern living, while also standing confidently as a distinctive residence in its own right. Built to exacting Passivhaus standards, these homes deliver outstanding energy efficiency, superior insulation, and advanced ventilation systems, with an anticipated EPC rating of A.
Generous ceiling heights and expansive triple-glazed windows enhance both natural light and the sense of space, while carefully considered proportions maximise views to the outside. Exceptional attention to detail is evident throughout, from the high levels of insulation and airtight construction to the enhanced acoustic performance and solid internal doors, all contributing to a refined and robust living environment.
Externally, durable and low-maintenance materials have been carefully selected, including high-quality triple-glazed uPVC windows and premium facing finishes, ensuring each home is built to stand the test of time. Every property has been individually designed for its specific setting, combining architectural integrity with practical, low-maintenance living.
Cubed Homes has placed a strong emphasis on selecting the most appropriate, high-quality finishes both inside and out, creating homes that are not only visually striking but built for long-term comfort and durability.
Each Cubed property is built with close attention to detail, comes with an array of features and are backed with a 10 Year Warranty by Build Zone.
KITCHEN: • The Kitchen is equipped with a range of Crown Kitchen, wall and floor cabinets with solid quartz worktops and upstands.
• Carron stainless steel under mounted sink with Franke chrome tap.
• Fully integrated appliances to include electric induction hob, oven, microwave, integrated fridge/freezer, integrated dishwasher and Caple wine cooler.
• Utility room provided with a range of Crown cabinets, solid quartz worktops and upstands, stainless steel sink, plus space for washing machine and tumble dryer.
• Amtico floor tiles to the kitchen/breakfast room, utility room and entrance hall.
BATHROOMS: • Luxurious white bathroom suites by with contemporary chrome fittings.
• Cabinetry to the cloakroom, bathroom and en-suites.
• Heated chrome towel rails provided to the bathroom and en-suites.
• Mirror and shaver socket to the bathroom and en-suites.
• Porcelain wall tiles and Amtico flooring to bathrooms and en-suites.
ELECTRICAL & MULTIMEDIA: • LED down lighters provided to the hall, kitchen/breakfast room, utility room and all bathrooms and ensuites. Pendant light provided to all other rooms.
• TV/Sat and BT/Data points are provided to the living room with a provision for Sky HD (box, dish and subscription not included). Further data points, wired back to a central point, provided in the kitchen/breakfast room and all bedrooms.
HEATING, HOT WATER, MVHR: • Passivhaus do not need a whole house heating system since they are so well insulated only a point of use electric heater is needed in the main reception room.
• Hot water will be provided by a Dimplex pressurised cylinder with its own air source heat pump designed to provide mains pressure hot water.
• Mechanical ventilation with heat recovery (MVHR) will provide warmed fresh air supplies to habitable rooms whilst extracting stale air from bathrooms and kitchens.
PEACE OF MIND: • All windows and glazed external doors (triple glazed to Passivhaus standard) with multi point locking system.
• External lighting provided to external doors.
• Mains smoke alarm fitted to the hall and landing.
• Mains heat detector provided to the kitchen/breakfast room,
FINISHING TOUCHES: • Composite front door and quality triple glazed PVCu framed windows and sliding doors.
• Solid internal doors.
• Bespoke staircase with oak handrail and glass infill panels.
EXTERNAL FEATURES: • Block paved driveway with timber fencing to boundaries.
• Patio area in stone paving.
• Individual array of high-quality external materials, including natural slate tile roofing, cladding and face brickwork to walls.
• Garage
Gardens seeded.
PASSIVHAUS PARTICULARITIES: • Passivhaus building envelope and ground floor system designed and certified by Beattie Passive. Further details on Cubed Homes website.
• EPC Rating A - anticipated.
• MVHR – Whole house ventilation system, continuously providing warmed fresh air and exhausting stale air.
• Triple glazed windows and doors – reducing heat loss and increasing sound insulation.
• Super insulated and airtight
• Reduction of heating requirement – reducing heating bills by up to 95% (depending on personal use and requirement)
SERVICES: • Property connected to electricity, water, mains foul drainage and surface water drainage to soak away.
TENURE: Freehold
There will be a management company to repair and maintain communal parts, i.e. road and verges.
Costs TBC. This management company will be passed to the owners on last sale.
We advise all interested purchasers to contact their legal advisor and seek confirmation of these figures prior to an exchange of contracts.
VIEWING: By appointment with Wood & Pilcher 01892 511211
AGENTS NOTE: All areas and sizes to be verified by purchaser. Specification subject to change without notice.
AGENTS NOTE 2: Some of these photographs include virtual staging to help illustrate potential furniture placement and décor. No freestanding furniture or accessories shown in the virtually staged photos are present. Buyers should rely on their own inspection of the property and not the virtual imagery for condition or included items. The interior photographs shown are from a typical Cubed Homes show home and are not necessarily representative of this house type.
ANTI MONEY LAUNDERING REQUIREMENTS:
In accordance with HMRC current legal requirements, we are required to carry out AML (Anti Money Laundering) checks on all purchasers once any offer has been accepted. A nonrefundable administration fee of £30 + VAT (£36) will apply for each prospective purchaser. Satisfactory AML results and evidence of funds and/or a mortgage AIP are required before any offer can be formally accepted and memorandum of sale issued.
Read less